Používame cookies

Súbory cookie a ďalšie technológie sledovania používame na zlepšenie vášho zážitku z prehliadania našich webových stránok, na to, aby sme vám zobrazovali prispôsobený obsah a cielené reklamy, na analýzu návštevnosti našich webových stránok a na pochopenie toho, odkiaľ naši návštevníci prichádzajú. Viac info

PREDAJ – 6 moderných apartmánov, projekt "RAŽANAC" – CHORVÁTSKO

Popis nehnuteľnosti

Zdieľať na Facebooku

Na predaj 6 moderných apartmánov – komfortné bývanie pri mori

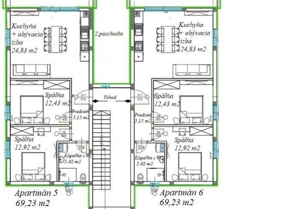
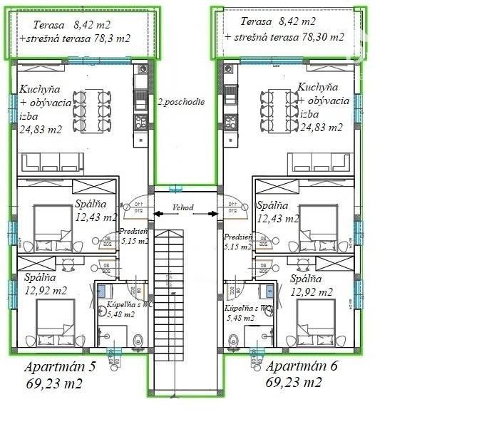
Ponúkame Vám na predaj 6 apartmánov v novostavbe – po 2 apartmány na každom podlaží (prízemie + 2 poschodia). Projekt je navrhnutý tak, aby poskytoval maximálny komfort a moderný štandard bývania.

Dispozícia a vybavenie apartmánov

Každý apartmán má výmeru takmer 70 m² a pozostáva z:

2 spální,

obývacej izby spojenej s kuchyňou,

kúpeľne s WC,

balkóna.

Apartmány na prízemí sú bezbariérové.

Apartmány na 2. poschodí majú k dispozícii terasu na streche prislúchajúcu ku každému bytu.

Štandard odovzdania

Apartmány sa odovzdávajú kompletne dokončené:

vchodové a interiérové dvere,

keramické podlahy,

kompletne vybavená kúpeľňa s WC a sanitou,

elektroinštalácia vrátane zásuviek a vypínačov,

klimatizácia,

vymaľované steny.

Samozrejmosťou je kompletná projektová dokumentácia a všetky potrebné povolenia.

Exteriér a parkovanie

k dispozícii je súkromné parkovisko,

1 parkovacie miesto ku každému apartmánu,

upravený dvor so zeleňou a oddychovou atmosférou.

Realizácia stavby

základné práce a železobetónový skelet realizuje overená chorvátska firma (odporúčaná architektom),

dokončovacie práce zabezpečujú overené slovenské partie murárov, elektrikárov, vodárov a sadrokartonistov,

projekt nie je viazaný na jednu firmu, ale na odborníkov, s ktorými úspešne spolupracujeme už na našom štvrtom projekte.

Naša podpora pre Vás

Okrem samotného apartmánu je v cene zahrnutá aj kompletná asistencia z našej strany – pomôžeme Vám s celým procesom, nasmerujeme Vás a postaráme sa o to, aby bolo všetko pre Vás pohodlné a bez stresu.

📌 Táto ponuka predstavuje ideálnu príležitosť pre tých, ktorí hľadajú moderné bývanie alebo investíciu v atraktívnej lokalite pri mori.

Vlastnosti

Status:
aktívne
Balkón:
áno
Terasa:
áno
Počet poschodí od prízemia vyššie:
2
Celková plocha:
70 m2
Cena v RK
Druh: Byty
Typ: Predaj
Typ bytu: Rekreačný apartmán
Iné:

Radi Vám poradíme